
O Tribunal de Contas já atribuiu o visto favorável ao contrato para a construção do Centro Cultural e de Inovação de Bordeira, na freguesia de Santa Bárbara de Nexe, anunciou esta terça-feira a Câmara de Faro em comunicado enviado às redações.
A empreitada, cuja adjudicação foi aprovada pela Câmara Municipal no dia 8 de setembro de 2020, vai implicar um investimento da autarquia de 1.418.327 euros, mais IVA à taxa legal, e tem um prazo de execução de 540 dias.
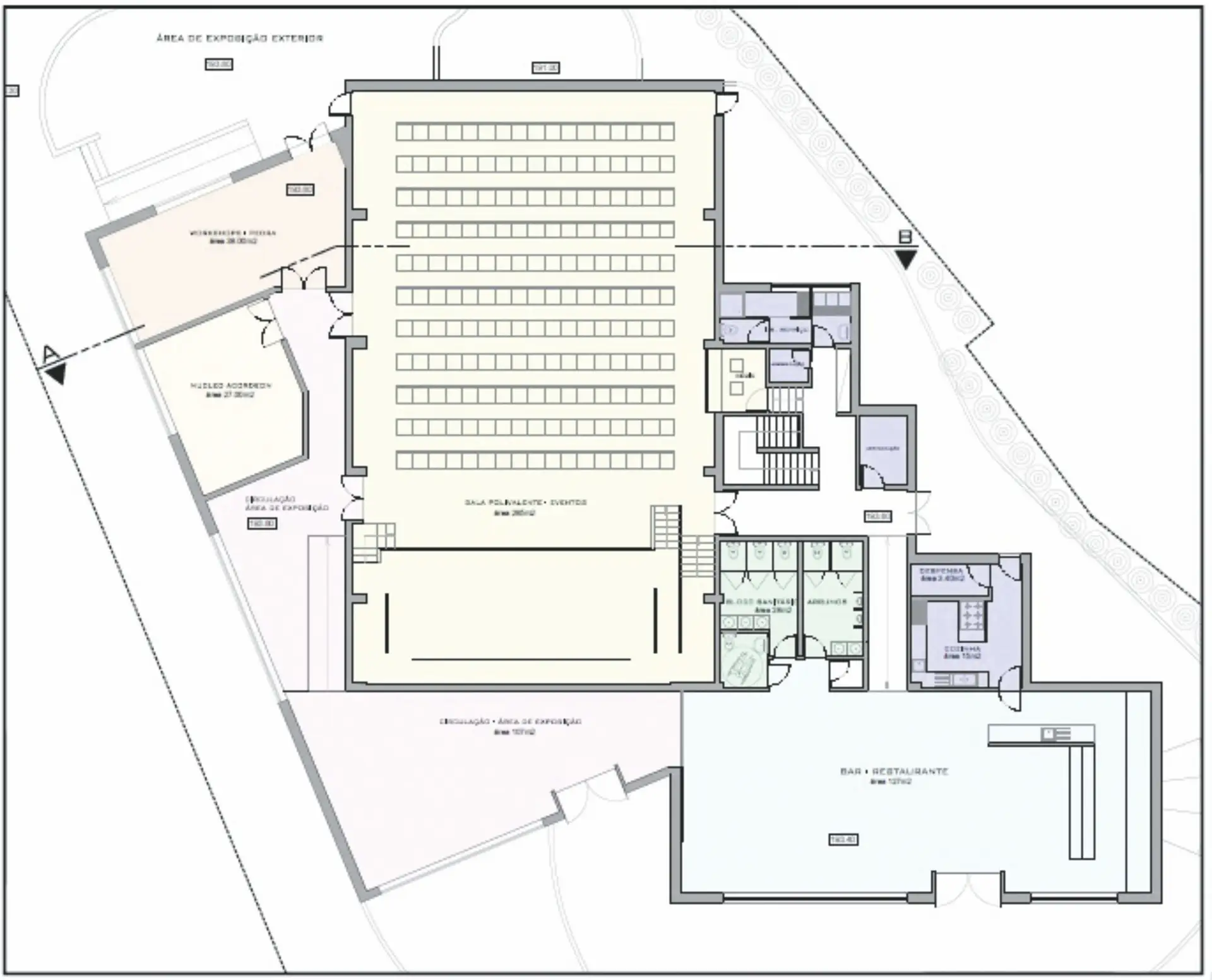
Segundo a Câmara de Faro, “a construção desta infraestrutura foi adjudicada ao concorrente Martins Gago & Filhos, Lda, e prevê a implementação de um edifício de âmbito cultural e recreativo – que inclui um Museu da Pedra e Museu do Acordeão – com o intuito de promover e divulgar a identidade desta povoação, através de manifestações artísticas no âmbito da música, teatro e trabalhos de cantaria. No espaço exterior, haverá um espaço destinado a bar, uma esplanada, e uma área destinada à exposição de peças de cantaria de maior porte”.

O financiamento desta empreitada está garantido através do empréstimo a médio e longo prazo no montante de 4.801.000 euros, aprovado e com visto favorável do Tribunal de Contas de 30 de outubro de 2019, a pagar, em condições favoráveis, num prazo de 12 anos.
Além desta empreitada, este financiamento visou ainda a concretização de um conjunto de intervenções cruciais para o desenvolvimento do território e para a melhoria da qualidade de vida dos farenses, nomeadamente o Centro de Recolha Oficial de animais (obra já adjudicada e em curso), a primeira fase da futura 3ª Circular (desde a Avenida 25 de abril à Estrada da Penha), a requalificação da centenária Alameda João de Deus (já em curso) e a requalificação da Mata do Liceu (cuja consignação dos trabalhos aguarda igualmente visto favorável do Tribunal de Contas, por se tratar de um contrato com um valor superior a 950 mil euros).
Neste caso, a proposta aprovada pela autarquia a 21 de setembro do ano passado, coube à empresa Arquijardim, S.A., e tem um valor de cerca de 1 milhão de euros.
















